Používáme cookies k optimalizaci našich webových stránek a našich služeb. Další informace o cookies najdete zde.

Nastavení


Byt 2+kk České Budějovice, Vodňanská

Byt 2+kk České Budějovice, Vodňanská

Popis nemovitosti

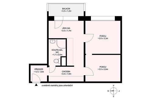
Představuji vám útulný byt o dispozici 2+kk, nacházející se ve 4. patře klidné ulice Vodňanská, který je připraven stát se vaším novým domovem.

Tento slunný byt nabízí chytře řešený prostor. Původní dispozice 1+1 byla citlivě upravena sádrokartonovou příčkou na moderní 2+kk, čímž vznikla oddělená ložnice či menší pracovna. Byt se pyšní zděným jádrem, což je záruka kvality a možnosti dalších úprav. Velkou přidanou hodnotou je nově přistavěná prostorná lodžie o velikosti 4,2 m2, která láká k posezení a relaxaci po náročném dni. Na chodbě oceníte praktickou vestavěnou skříň, která poskytuje dostatek úložného prostoru.

Lokalita v ulici Vodňanská je synonymem pro klidné bydlení s výbornou dostupností veškeré občanské vybavenosti. V blízkosti naleznete obchody, školy, školky, zdravotnická zařízení i zastávky městské hromadné dopravy, což zajišťuje rychlé spojení s centrem města i dalšími částmi Českých Budějovic. Zároveň si užijete blízkost zeleně a možností pro procházky či sportovní aktivity, což dělá z této adresy ideální místo pro život.

Tento byt je perfektní volbou pro jednotlivce, mladé páry nebo jako investiční příležitost. Nabízí moderní bydlení v oblíbené části města bez nutnosti větších investic. Přijďte se sami přesvědčit o jeho kvalitách a nechte se okouzlit atmosférou, kterou nabízí. Rád vám poskytnu další informace na osobní prohlídce.

------------------------------------

plocha bytu - 42,75 m2

plocha lodžie - 4,2 m2

plocha sklepa - 1 m2

fond oprav - 1.814,- Kč

------------------------------------

Cena: 4.000.000,- Kč

Marek Pleskač

Finance a reality mě provázejí prakticky celý dospělý život. Po absolvování Stavební průmyslovky v Chebu jsem se vydal studovat do Českých Budějovic bankovnictví. Cenné zkušenosti jsem následně sbíral 11 let na firemním oddělení Raiffeisenbank. Své obchodní a komunikační dovednosti jsem poté 4 roky piloval v ČSOB Stavební spořitelně. Všechny mé předchozí pracovní aktivity byly tedy vždy spojené s úctou a profesionálním přístupem ke svým klientům.


Marek Pleskač

Kontaktní formulář

Stáhnout PDF